SERVICES

提供设计服务、总包服务及进出口服务,以专业的视角为
您提供量身定制的服务,以管家的方式为您提供总包服务,
以制造商的身份为您提供进出口增值服务。

设计服务

自有设计团队,自主创新设计,涵盖展示空间全案设计,
包括店铺设计、展示道具设计、陈列小道具设计及橱窗道具设计等

店铺设计

提供覆盖全国的现场尺寸勘测服务,出具全套完整的可供商场过审的施工图及效果图,道具图纸可以直接落地生产。

店铺设计

提供覆盖全国的现场尺寸勘测服务,出具全套完整的可供商场过审的施工图及效果图,道具图纸可以直接落地生产。

店铺设计

提供覆盖全国的现场尺寸勘测服务,出具全套完整的可供商场过审的施工图及效果图,道具图纸可以直接落地生产。

展示道具设计图

提供展示道具图纸深化服务及展示道具原创设计服务。

展示道具效果图

提供展示道具图纸深化服务及展示道具原创设计服务。

展示道具成品照

提供展示道具图纸深化服务及展示道具原创设计服务。

陈列小道具设计图

提供陈列小道具图纸深化服务及陈列小道具原创设计服务。

陈列小道具效果图

提供陈列小道具图纸深化服务及陈列小道具原创设计服务品。

陈列小道具成品照

提供陈列小道具图纸深化服务及陈列小道具原创设计服务。

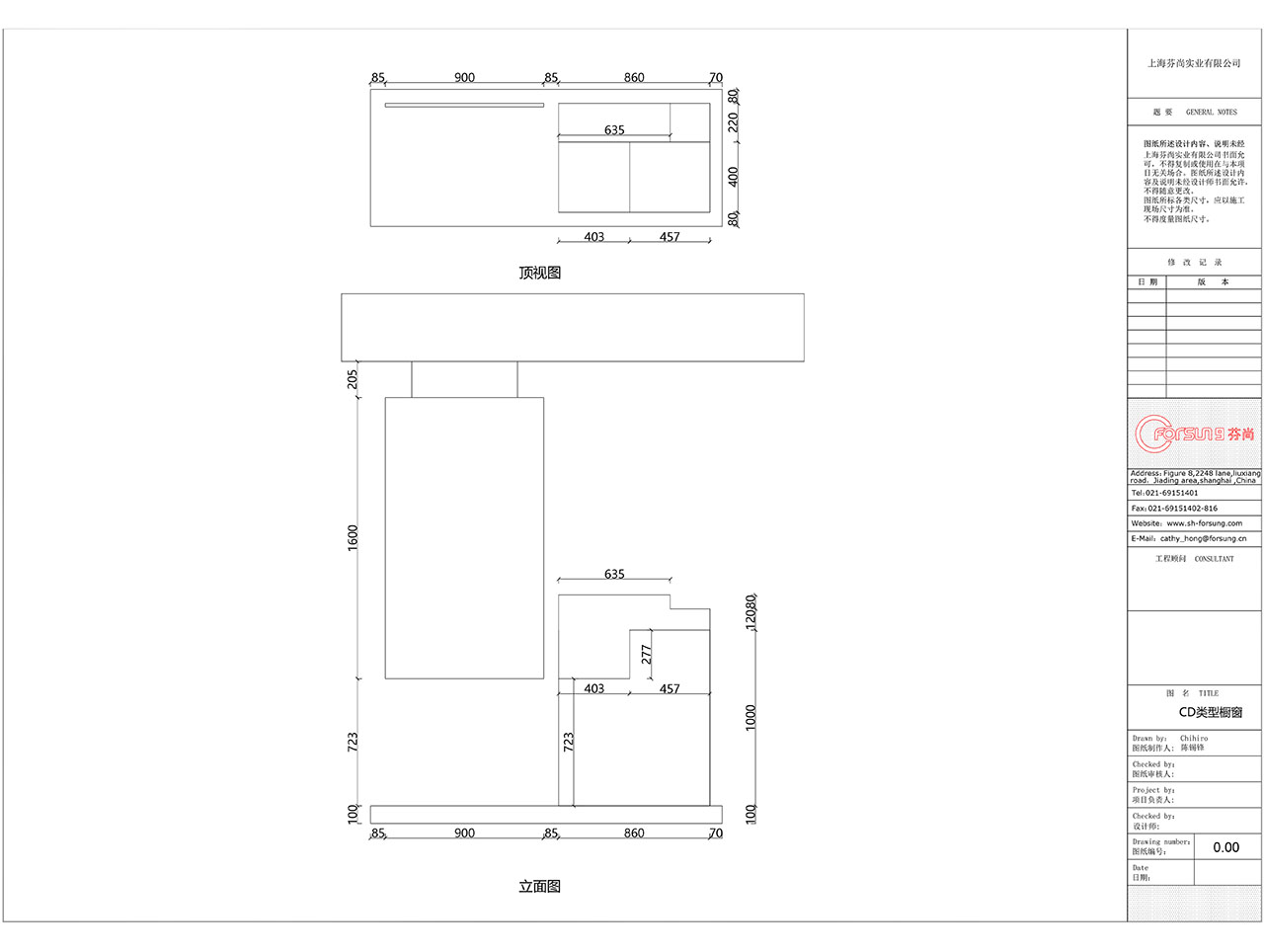
橱窗道具设计图

提供橱窗道具图纸深化服务及橱窗道具原创设计服务。

橱窗道具效果图

提供橱窗道具图纸深化服务及橱窗道具原创设计服务。

橱窗道具成品照

提供橱窗道具图纸深化服务及橱窗道具原创设计服务。

总包服务

专业卓越的项目经理1对1管理负责制,为您提供全方位的服务和支持,
真正享受一站式实现展示空间打造的便捷和快乐。

进出口服务

具备全套出口资质,具备多年的进出口经验,提供进出口服务